
PLANOS CASAS
En esta hoja les mostramos planos de casas a modo orientativo, en ellos se ha procurado mantener unas medidas minimas en las habitaciones para que se pueda instalar cualquier tipo de mueble de medidas normales y asi tambien en los muebles de cocina y comedor.
Todos los planos mostrados estan diseñados con las ideas aportadas por nuestros clientes, todos ellos son modificables a gusto y necesidades del cliente, tanto en distribucion interior como en tamaño total sin sobrecoste, este ultimo consultar, puede variar en funcion de las modificaciones de la extructura.
Todos ellos estan diseñados para fabricarse solo con una planta y tambien con buhardilla o primera planta con distribucion a elegir por el cliente.
A cualquier plano de los mostrados se le puede aplicar el acabado exterior que desee el cliente, madera plana o redonda, piedra artificial, fibrocemento, etc... todos ellos con acabado fino o rustico, y elegir tambien el tipo y forma de la cubierta.
![]() |
![]() |
|||
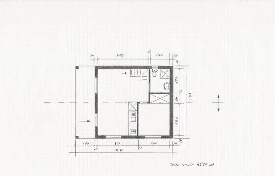
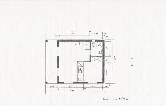
| Referencia casa: Total planta................................................29,16 m" Total con media buhardilla..........................49,16 m" Total con buhardilla completa.....................58,32 m" |
Referencia casa: |
![]() |
![]() |
|||
| Referencia casa: | Referencia casa: |
![]() |
![]() |
|||
| Referencia casa: | Referencia casa: |
![]() |
![]() |
|||
| Referencia casa: | Referencia casa: |

Planos de casas con una altura diseñados a partir de los anteriores segun los gustos y necesidades del cliente:
![]() |
![]() |
|||
| Referencia casa: | Referencia casa: |
![]() |
![]() |
|||
| Referencia casa: | Referencia casa: |

Bungalows ampliables diseñados para ser ampliados despues de construido en dos o tres habitaciones:
![]() |
![]() |
|||
| Referencia casa: | Referencia casa: |
![]() |
![]() |
|||
| Referencia casa: | Referencia casa: |
![]() |
![]() |
|||
| Referencia casa: | Referencia casa: |

Planos de casas de tamaño diferente diseñados siempre con las sugerencias y necesidades de nuestros clientes:
![]() |
![]() |
|||
| Referencia casa: | Referencia casa: |
![]() |
![]() |
|||
| R | R |
![]() |
![]() |
|||
| R | R |

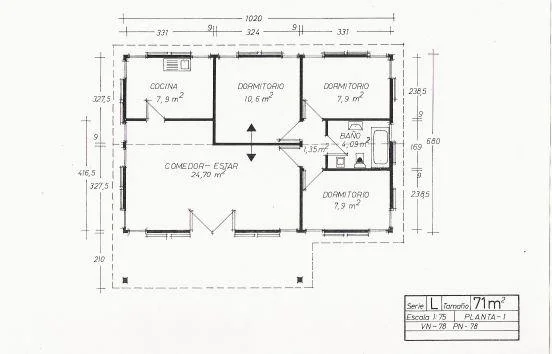
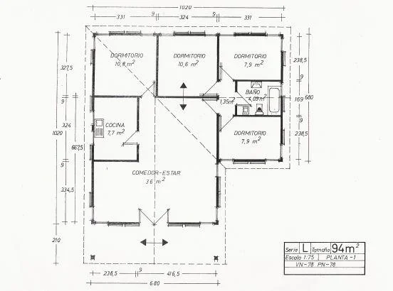
Casas en principio diseñadas para una planta pero cada una de ellas se puede fabricar con semi buhardilla, buhardilla o una altura, siempre en funcion de los deseos de nuestros clientes y en funcion de sus necesidades:
![]() |
![]() |
|||
| R | R |
![]() |
![]() |
|||
| R | R |
![]() |
![]() |
|||
| R | R |
![]() |
![]() |
|||
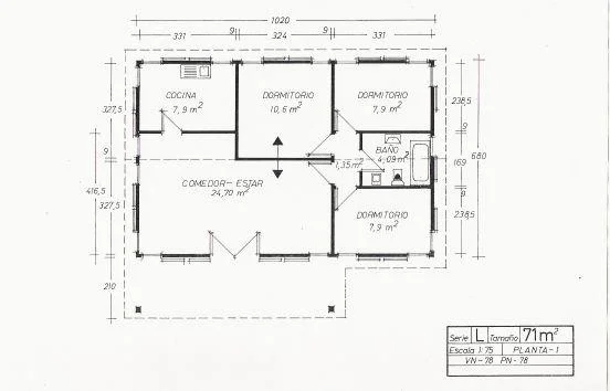
| Referencia casa: Total planta......................................89 m" |
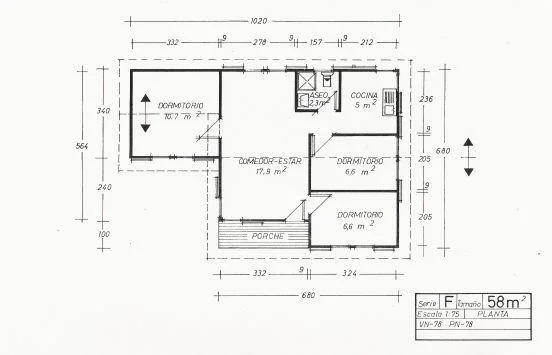
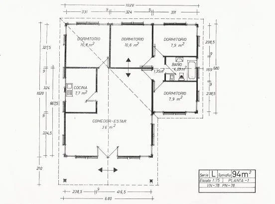
Referencia casa: Total planta..................................................94 m" |
![]() |
![]() |
|||
| Referencia casa: Total planta...................................................95 m" |
Referencia casa: Total planta............................................106 m" |
![]() |
![]() |
|||
| Referencia casa: Total planta..............................................117 m" |
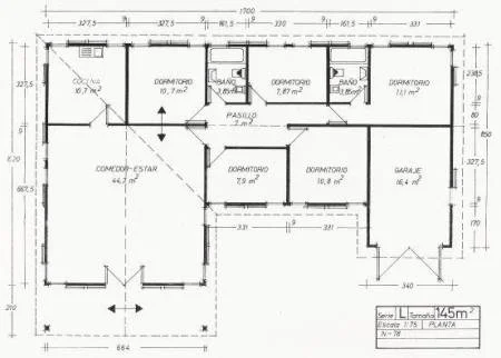
Referencia casa: Total planta....................................145 m" |
































